Moderan stan sa velikim dvorištem na atraktivnoj lokaciji - u izgradnji

Površina objekta

108.43 m2

Broj spavaćih soba

3

Broj kupaonica

2

Kat

n/a

Poreč
435.000 €
4.012 €/m2
  • Površina parcele : 86.10 m2
  • Udaljenost od centra : 2000 m
  • Udaljenost od mora : 1000 m
  • Broj katova : 1
  • Broj spavaćih soba : 3
  • Broj soba : 4
  • Broj kupaonica : 2
  • Parking : Da
  • Klima uređaj : Da
  • Godina izgradnje : 2024
  • Energetska učinkovitost : Nije određeno

OPIS NEKRETNINE

Istra, Poreč

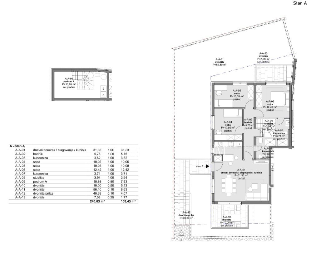
Na izrazito traženoj lokaciji u blizini centra grada Poreča i prekrasnih plaža prodaje se ovaj moderan stan sa dvorištem u prizemlju ukupne površine od 108,43m2.

Stan se sastoji od ulaznog hodnika koji nas vodi u prostrani dnevni prostor gdje se nalaze dnevni boravak i kuhinja sa blagovaonom otvorenog tipa.
Kroz cijeli dnevni prostor postavljene su staklene stijene koje omogućavaju veliki dotok svijetlosti.
Iz dnevnog dijela izlazi se na terasu koja je natkrivena te prekrasno uređeno dvorište ukupne površine od 86,10m2.
U dvorištu se se može napraviti ljetna kuhinja te postaviti jacuzzi za uživanje i relaksaciju uz djelomični pogled na more.
U stanu su još smještene 3 spavaće sobe od kojih jedna ima vlastitu kupaonu, te još jedna dodatna kupaona za preostale 2 spavaće sobe.

Stanu pripadaju 2 parkirna mjesta u dvorištu koja će biti spojena stazom prema zasebnom ulazu koji će koristiti samo ovaj stan pružajući novim vlasnicima privatnost i mir te odvojenost od drugi stanara ove fenomenalne zgrade.

Ostava u podrumu površine od 15,86 m2 također pripada ovome stanu.

U cijelom stanu će biti postavljeno podno grijanje na dizalicu topline te prva faza za klima uređaje.

Materijali za izgradnju biti će iznimno kvalitetni što je poznato za ovog cijenjenog investitora i njegove projekte.
Podovi u stanu biti će obloženi kvalitetnim parketom osim podova u kupaonama i kuhinji gdje će biti postavljana vrhunska keramika.

Predviđeni završetak gradnje je ciljan za kraj 2024. godine.

Rijetka i odlična lokacija u novome naselju sa prekrasnim ambijentom te sadržaj i komfor koji ova nekretnina nude idealna su investicija za svakoga.

  • REI ID : 65735
  • Interni ID agencije : 1810
  • Datum objave : 14.08.2024.
  • Datum ažuriranja : 13.08.2024.
  • Broj pregleda : 709
  • Prijavi oglas

Svi podaci i slike na ovim internetskim stranicama prikazani su samo za informativne svrhe, prije bilo kakvog zaključka ili aktivnosti temeljenima na podacima sa ovih stranica, sve informacije je potrebno provjeriti kod oglašivača.

Niste pronašli traženo? Pogledajte sve Stanovi Poreč u našoj ponudi!

KONTAKTIRAJTE AGENTA