Medulin, Zemljište do mora! Građevinska dozvola, plaćene komunalije

Površina parcele

565 m2

Udaljenost od mora

100 m

Medulin
271.500 €
481 €/m2

OPIS NEKRETNINE

Na prodaju je građevinsko zemljište površine 565 m², smješteno u okolici Medulina, svega stotinjak metara udaljenosti od mora.

Parcela je ravna, pravilnog oblika, očišćena i spremna za gradnju, a nalazi se u mirnom i atraktivnom dijelu mjesta s pogledom na more. Svi priključci za struju, vodu i kanalizaciju su osigurani, dok su komunalni doprinosi već plaćeni, što uvelike pojednostavljuje i ubrzava početak gradnje.

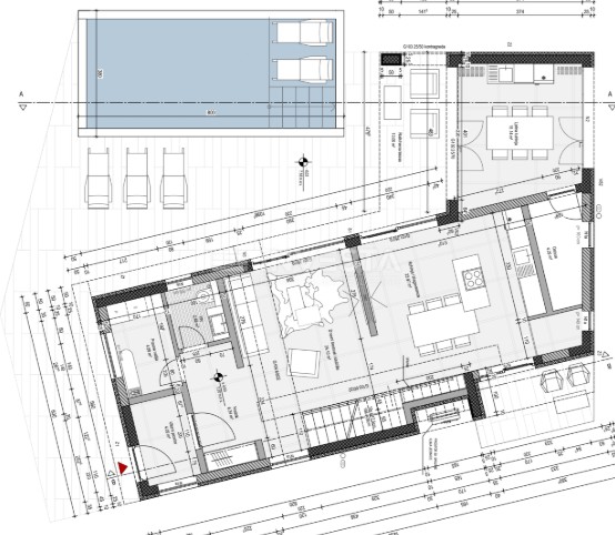
Zemljište dolazi s gotovim projektom za luksuznu vilu ukupne površine 193 m², koja se proteže na prizemlje i kat. Projekt uključuje prostrani dnevni boravak s kuhinjom i blagovaonicom, tri spavaće sobe, svaka s vlastitom kupaonicom i izlazom na lođu, dodatne sadržaje poput praonice rublja, gostinjskog toaleta, dvije ostave i ljetne kuhinje povezane s natkrivenom terasom. Predviđena je i izgradnja privatnog bazena veličine 30 m², garaže od 22 m² te dva vanjska parkirna mjesta. Tlocrt vile pažljivo je osmišljen kako bi pružio maksimalnu udobnost, funkcionalnost i moderan stil života.

Kupcima se nudi mogućnost kupnje objekta u roh bau fazi po cijeni od 586.000 eura, uz opciju dovršetka po sistemu "ključ u ruke", pri čemu se konačna cijena dogovara ovisno o željenom standardu i opsegu radova. Gradnja može započeti odmah po sklapanju ugovora.

Također, uz ovu parcelu se prodaje i susjedno zemljište s projektom, što budućem vlasniku otvara mogućnost spajanja zemljišta i prilagodbe planova prema vlastitim potrebama ili većim investicijskim zamislima.

Vlasništvo je uredno, bez tereta, a u cijenu je uključen PDV.

Za više informacija i dogovor o razgledavanju, slobodno nas kontaktirajte!

Anais Naimarević Ramljak
Mob: +385 99 825 2485
Tel: +385 52 33 00 33
E-mail: anais@investa.hr
www.investa.hr

  • REI ID : 81137
  • Interni ID agencije : XML-3061-276157
  • Datum objave : 02.09.2025.
  • Datum ažuriranja : 20.09.2025.
  • Broj pregleda : 462
  • Prijavi oglas

Svi podaci i slike na ovim internetskim stranicama prikazani su samo za informativne svrhe, prije bilo kakvog zaključka ili aktivnosti temeljenima na podacima sa ovih stranica, sve informacije je potrebno provjeriti kod oglašivača.

KONTAKTIRAJTE AGENTA