Kamena kuća s projektom za vilu s bazenom – 250 m od centra, 10 km od mora

Površina objekta

66 m2

Površina parcele

650 m2

Broj spavaćih soba

0

Broj kupaonica

0

Višnjan
155.000 €
2.348 €/m2
  • Udaljenost od centra : 250 m
  • Udaljenost od mora : 10000 m
  • Parking : Da
  • Energetska učinkovitost : Nije određeno

OPIS NEKRETNINE

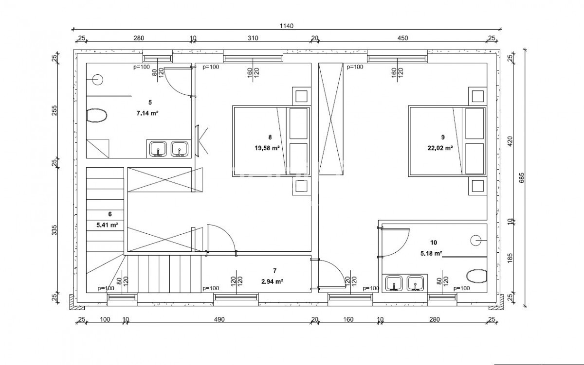
Samostojeća kamena kuća od 66 m2 tlocrtne površine, smještena na zemljištu od 650 m2. Trenutno se sastoji od prizemlja (dvije prostorije) i potkrovlja. Nekretnina ima idejni projekt prema kojem bi kuća imala 123 m2 na dvije etaže (prizemlje i kat). Projekt predviđa dvije spavaće sobe s kupaonicama na katu, dok bi u prizemlju bio 'open space' koncept s kuhinjom, blagovaonicom i dnevnim boravkom, uz gostinjski WC i spremište.

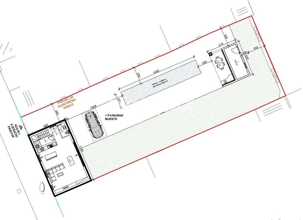
Planirano dvorište uključuje bazen dimenzija 14 x 2,5 m, ljetnu kuhinju te dodatnu prostoriju od 12 m2. Kuća ima aktivna brojila struje i vode te se nalazi u naselju s kompletnom infrastrukturom, svega 250 m od centra i 10 km od mora. Savršena kombinacija za stanovanje ili turistički najam.

  • REI ID : 89441
  • Interni ID agencije : 1448
  • Datum objave : 21.02.2026.
  • Datum ažuriranja : 07.04.2026.
  • Broj pregleda : 325
  • Prijavi oglas

Svi podaci i slike na ovim internetskim stranicama prikazani su samo za informativne svrhe, prije bilo kakvog zaključka ili aktivnosti temeljenima na podacima sa ovih stranica, sve informacije je potrebno provjeriti kod oglašivača.

KONTAKTIRAJTE AGENTA