ISTRA - POREČ - KAMENA REKONSTRUIRANA ISTARSKA VILLA NA 1630m2 PARCELE!

Površina objekta

350 m2

Površina parcele

1630 m2

Broj spavaćih soba

4

Broj kupaonica

5

Poreč
985.000 €
2.814 €/m2
  • Broj katova : 1
  • Broj spavaćih soba : 4
  • Broj soba : 5
  • Broj kupaonica : 5
  • Broj wca : 1
  • Parking : Da
  • Bazen : Da
  • Godina izgradnje : 1970
  • Energetska učinkovitost : Nije određeno

OPIS NEKRETNINE

ISTRA - POREČ

Na samo 10km od centra Poreča smjestila se ova jedinstvena istarska kamena villa u kompletnoj privatnosti na čak 1630m2 zemljišta.
Sa pogledom na zelenilo i poljoprivredna zemljišta, vlastitim bijelim putem koji će biti uređen od strane investitora.
Istarska villa datire još iz 1700te godine te ima neodoljiv šarm.
Villa je u kompletnoj fazi rekonstrukcije i izuzetno kvalitetne adaptacije.

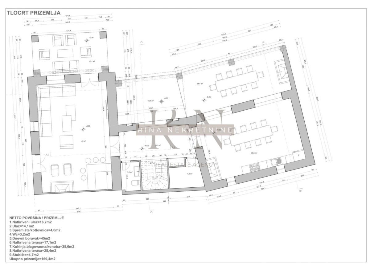
Prostrana villa sadržavati će na katu 4 spavaćih soba sa 5 kupaonica, dok u prizemlju gostinjski wc, kompletno odvojeni prostrani dnevni boravak i izlazak na natkrivenu terasu sa kovanom ogradom, odvojena kuhinja sa blagavaonicom i izlazom na vanjsku natkrivenu terasu sa pravim kaminom (jasnije vidljivo u tlocrtu).
Podkrovni prostor biti će uređen prema želji kupca, neke od ideja su spavaći dio, walk in closet, radni dio ili nešto treće.
Dnevni boravak i kuhinja gledati će na prekrasan bazen dimenzija 11x4, obložen keramikom te uređeni dio za sunčanje.
Uz bazen stajati će manja kamena kuća u svrhu wellnesa u kojemu će biti teretana, sauna, masažna kada te wc.
Pošto je od 1630m2 zemljišta samo 400m2 poljoprivredno, moguće je dogovoriti izgradnju pomoćnog objekta u svrhu garaža ili nešto treće (nadoplata).
Trenutna faza rekonstrukcije dozvoljava kupcu potpuni utjecaj na završni izgled unutrašnjosti ville.

Podno strujno grijanje, hlađenje putem klima u svakoj prostoriji.
Uredna dokumentacija.

Cijena 985.000eur
Obratite nam se s povjerenjem!
RINA +385 99 640 1751



Rina Broqi
Agent
Mob: +385 99 640 1751
Tel: +385 1 638 2643
E-mail: rina@rina-nekretnine.hr
www.rina-nekretnine.hr

  • REI ID : 66260
  • Interni ID agencije : XML-4180-322732
  • Datum objave : 31.08.2024.
  • Datum ažuriranja : 13.10.2024.
  • Broj pregleda : 998
  • Prijavi oglas

Svi podaci i slike na ovim internetskim stranicama prikazani su samo za informativne svrhe, prije bilo kakvog zaključka ili aktivnosti temeljenima na podacima sa ovih stranica, sve informacije je potrebno provjeriti kod oglašivača.

Niste pronašli traženo? Pogledajte sve Kuće Poreč u našoj ponudi!

KONTAKTIRAJTE AGENTA