Istra, Labin, okolica - atraktivna vila u roh-bau fazi na savršenoj lokaciji, 80 m od mora

Površina objekta

465 m2

Površina parcele

807 m2

Broj spavaćih soba

4

Broj kupaonica

3

Labin
1.200.000 €
2.581 €/m2
  • Udaljenost od mora : 80 m
  • Broj katova : 1
  • Broj spavaćih soba : 4
  • Broj soba : 5
  • Broj kupaonica : 3
  • Broj wca : 1
  • Pogled na more : Da
  • Parking : Da
  • Bazen : Da
  • Godina izgradnje : 2024
  • Energetska učinkovitost : Nije određeno

OPIS NEKRETNINE

Istra, Labin, okolica


Na samo 50-tak metara od obale, u malom i mirnom istarskom mjestu, prodaje se luksuzna vila sa očaravajućim otvorenim pogledom na more i zaljev.
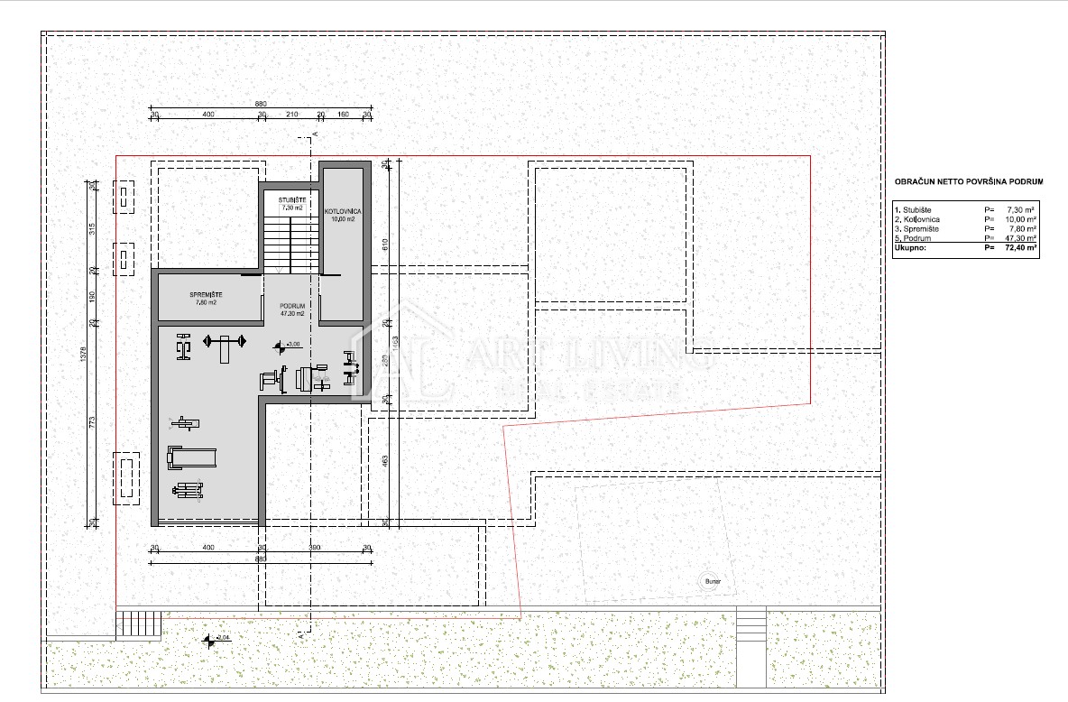
Vila je ukupne površine 465 m2, smještena je na zemljištu površine 807 m2 i proteže se na tri etaže, podrum, prizemlje i kat.

Podrum ukupne netto površine 72,40 m2 sastoji se od prostorije za teretanu te spremišta i kotlovnice.

U prizemlju je smještena kuhinja, blagovaona i dnevni boravak, jedna spavaća soba i toalet, te spremište te garaža. Na južnoj strani nalazi se impozantna staklena stijena sa pogledom na vanjski infinity bazen, sunčalište i terasu. Ukupna netto površina prizemlja iznosi 221,90 m2.

Na katu netto stambene površine 170,80 m2 predviđene su 3 spavaće sobe, 3 kupaonice, garderoba te nenatkrivene terase.
Vila obiluje velikim staklenim stijenama što omogućuje puno prirodnog svjetla, te pogled na more iz svake prostorije.

Vrhunski standardi gradnje i jedinstvena lokacija na samoj obali mora čine ovu nekretninu savršenim mjestom za uživanje u prirodi, luksuzu i udobnosti u domu iz snova.

Vila je u rohbau fazi, postavljena je stolarija i jedan dio instalacija a cijena se odnosi na kuću u sadašnjem stanju.



Poštovani klijenti, moguće je razgledati nekretninu isključivo uz potpisani ugovor o posredovanju koji je temelj za daljnje radnje vezane za kupoprodaju i naplatu provizije, a sve sukladno Zakonu o posredovanju u prometu nekretnina.

Agencija „ART LIVING REAL ESTATE“ kao ovlašteni posrednik u prometu nekretninama, za uslugu posredovanja naplaćuje posredničku naknadu u iznosu od 3% + PDV u trenutku sklapanja Predugovora ili Ugovora o kupoprodaji.

NAPOMENA: Ne odgovaramo za eventualne pogreške u opisima nekretnina, ali u istima želimo biti što precizniji i točniji




ID KOD AGENCIJE: 1303


Mia Glad
Voditelj ureda
Mob: 091 784 8083
Tel: +385 91 784 80 83
E-mail: office@artliving-realestate.hr
www.artliving-realestate.hr

  • REI ID : 72118
  • Interni ID agencije : XML-4260-567375
  • Datum objave : 28.01.2025.
  • Datum ažuriranja : 29.04.2025.
  • Broj pregleda : 756
  • Prijavi oglas

Svi podaci i slike na ovim internetskim stranicama prikazani su samo za informativne svrhe, prije bilo kakvog zaključka ili aktivnosti temeljenima na podacima sa ovih stranica, sve informacije je potrebno provjeriti kod oglašivača.

KONTAKTIRAJTE AGENTA