Ekskluzivno zemljište s arhitektonski uređenim projektom kuće

Površina parcele

422 m2

Udaljenost od mora

700 m

Funtana
260.000 €
616 €/m2

OPIS NEKRETNINE

Istra, Funtana – Ekskluzivno zemljište s arhitektonski uređenim projektom kuće

Na prodaju je građevinsko zemljište pravilnog oblika površine 422 m², smješteno na atraktivnoj i mirnoj lokaciji u Funtani, svega 700 metara od mora.

Zemljište dolazi s arhitektonski uređenim projektom moderne obiteljske kuće, koji je predan na obradu. Projekt je pažljivo osmišljen kako bi se postigao savršen spoj elegantnog dizajna, funkcionalnosti i udobnosti.

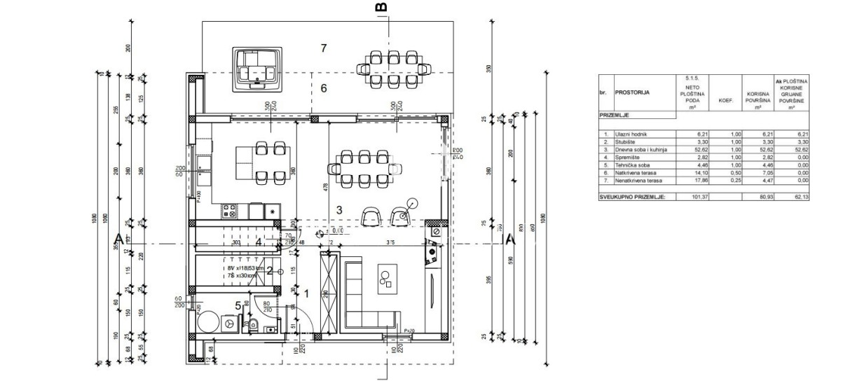
Planirana kuća prostire se na dvije etaže, ukupne neto površine 174,13 m².

U prizemlju su predviđeni ulazni hodnik, spremište, WC/tehnička soba te prostrani dnevni boravak s kuhinjom i blagovaonicom, koji ima izlaz na prostranu djelomično natkrivenu terasu.

Stepenicama se dolazi na prvi kat, gdje se nalazi master spavaća soba s vlastitom kupaonicom i natkrivenim balkonom, te još dvije spavaće sobe, od kojih jedna ima natkriveni balkon, kao i zajednička kupaonica.

Sva potrebna infrastruktura – struja, voda i kanalizacija – nalazi se u neposrednoj blizini zemljišta, što omogućava brz početak gradnje.
Lokacija pruža mir, privatnost i blizinu mora, čineći ovu nekretninu izvrsnim izborom za izgradnju kuće za stanovanje, odmor ili investiciju.

  • REI ID : 82230
  • Interni ID agencije : 2162
  • Datum objave : 10.10.2025.
  • Datum ažuriranja : 09.10.2025.
  • Broj pregleda : 552
  • Prijavi oglas

Svi podaci i slike na ovim internetskim stranicama prikazani su samo za informativne svrhe, prije bilo kakvog zaključka ili aktivnosti temeljenima na podacima sa ovih stranica, sve informacije je potrebno provjeriti kod oglašivača.

KONTAKTIRAJTE AGENTA