Buzet: građevinsko zemljište s projektom LUKSUZNE VILE i tenis terenom

Površina parcele

2016 m2

Buzet
150.000 €
74 €/m2

OPIS NEKRETNINE

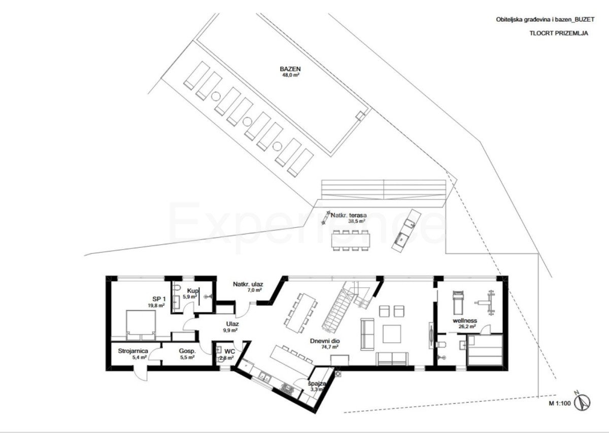
U Buzetu – nadomak centra grada, u iznimno mirnom ambijentu na prodaji je građevinsko zemljište, površine 2.016 m². Sa svojom idiličnom lokacijom na rubu građevinske zone, na uzvišenju koje pruža panoramski pogled na sam Buzet i okolne brežuljke, ovo zemljište nudi izvanredan spoj prirodnih ljepota i urbanih pogodnosti. Umirujuća tišina i privatnost su neosporni aduti ove lokacije. Izrađen je projekat za izgradnju luksuzne moderne vile, a koja se prostire na dvije etaže ukupne neto površine 268,90 m², sa bazenom od 48 m² i tenis terenom.

  • REI ID : 78265
  • Interni ID agencije : 2172
  • Datum objave : 01.07.2025.
  • Datum ažuriranja : 12.03.2026.
  • Broj pregleda : 299
  • Prijavi oglas

Svi podaci i slike na ovim internetskim stranicama prikazani su samo za informativne svrhe, prije bilo kakvog zaključka ili aktivnosti temeljenima na podacima sa ovih stranica, sve informacije je potrebno provjeriti kod oglašivača.

KONTAKTIRAJTE AGENTA