Lägenhet Tar-Vabriga - under uppbyggnad

Objektstorlek

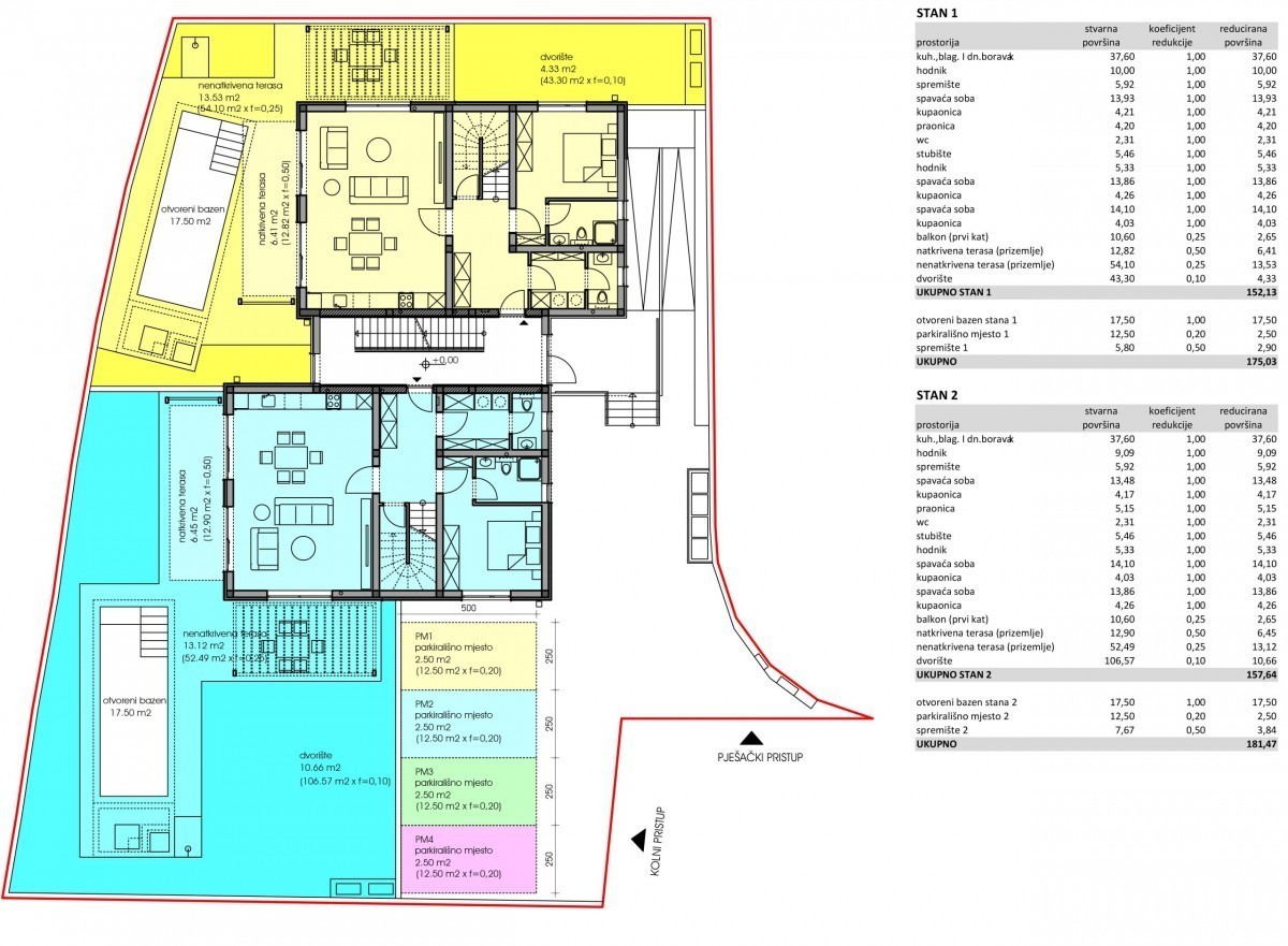
175 m2

Antal sovrum

3

Antal badrum

3

Golv

Bottenvåning

Tar-Vabriga, Tar
544.000 €
3.109 €/m2
  • Avstånd från centrum : 700 m
  • Avstånd från havet : 3000 m
  • Antal våningar : 2
  • Antal sovrum : 3
  • Antal rum : 3
  • Antal badrum : 3
  • Havsutsikt : Ja
  • Parkering : Ja
  • Luftkonditionering : Ja
  • Simbassäng : Ja
  • År av konstruktion : 2024
  • Energieffektivitet : A
  • REI ID : 55380
  • Byråns interna ID : 3038
  • Publiceringsdatum : 25.06.2023.
  • Uppdatera datum : 24.06.2023.
  • Antal visningar : 1448
  • Anmäl en annons

All data och bilder på dessa webbplatser presenteras endast i informationssyfte, innan någon slutsats eller aktivitet baserad på data från dessa sidor bör all information kontrolleras med annonsören.

KONTAKTA EN AGENT