Prodamo luksuzno vilo z bazenom, Kaštelir, Poreč!

Velikost stavbe

99.60 m2

Velikost parcele

0 m2

Število spalnic

5

Število kopalnic

0

Kaštelir-Labinci, Kaštelir
1.250.000 €
12.550 €/m2
  • Število spalnic : 5
  • Število sob : 5
  • Energetska učinkovitost : Ni določeno

OPIS NEPREMIČNINE

Novo v ponudbi!

Prodajamo luksuzno vilo z bazenom v Kaštelirju, popolno za tiste, ki iščejo moderno zasnovo in vrhunske udobnosti!
O Vili:

Ta čudovita vila združuje sodobno arhitekturo z luksuznimi elementi in ponuja popolno kombinacijo udobja in stila. Razteza se čez tri etaže in je zasnovana tako, da maksimizira naravno svetlobo in omogoča spektakularne poglede na okolico.
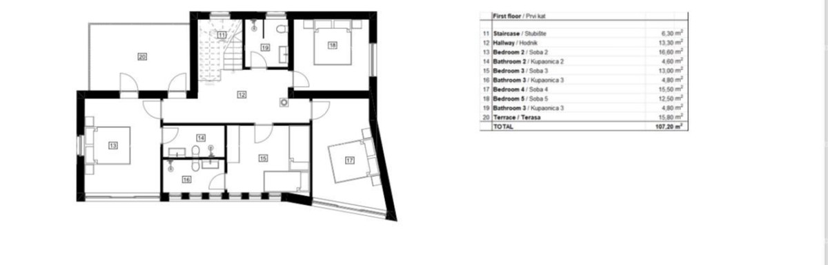
Pritličje:

Prostoren vhod, ki vodi v veliko dnevno sobo in jedilnico (48,89 m²)
Moderna, popolnoma opremljena kuhinja (6,90 m²)
Udobna spalnica, popolnoma opremljena kopalnica in WC za goste
Velika zunanja terasa s poletno kuhinjo in elegantno pergolo (20,30 m²)

Prva etaža:

Štiri prostorne spalnice z veliko naravne svetlobe
Glavna spalnica (15,90 m²) z lastno kopalnico (4,80 m²)
Dve dodatni kopalnici
Velika terasa (16,80 m²) s panoramskim razgledom

Streha:

Čudovito urejena strešna terasa (27,90 m²) s pergolo (23,90 m²) za jedilnico na prostem in sprostitev

Klet:

Fitnes (26,50 m²), savna (14,30 m²) in velika garaža (47,90 m²)
Tehnična soba (11,60 m²) in dodaten prostor za shranjevanje

Zunanji prostor:

Zasebni bazen (41,20 m²) in jacuzzi (5,80 m²)
Lepo urejen vrt s prostorom za sprostitev in aktivnosti na prostem

Skupna površina:

Notranji prostor: 323,50 m²
Zunanji prostor: 132,60 m²

Ta vila je odlična izbira za družine ali posameznike, ki iščejo sodobno in luksuzno bivanje v mirnem okolju. Ne zamudite te edinstvene priložnosti!

Za več informacij in ogled nas kontaktirajte še danes!
Azra
+ 385 91 611 5706
+385 98 420 885
azra@almadominvest.com

  • REI ID : 91783
  • Notranji ID agencije : 28401
  • Datum objave : 12.04.2026.
  • Datum posodobitve : 11.04.2026.
  • Število ogledov : 35
  • Prijavite oglas

Vsi podatki in slike na teh spletnih straneh so zgolj informativne narave, pred kakršnim koli zaključkom ali aktivnostjo na podlagi podatkov s teh strani je potrebno vse informacije preveriti pri oglaševalcu.

OBRNITE SE NA AGENTA