Enosobno stanovanje B3 v 3. nadstropju s KROVNIM TERASO, Vabriga!

Velikost stavbe

52.86 m2

Število spalnic

1

Število kopalnic

1

Nadstropje

3

Poreč
273.020 €
5.165 €/m2
  • Število nadstropij : 4
  • Število spalnic : 1
  • Število sob : 1
  • Število kopalnic : 1
  • Pogled na morje : Da
  • Parkirni prostor : Da
  • Klima : Da
  • Leto izdelave : 2023
  • Energetska učinkovitost : A+

OPIS NEPREMIČNINE

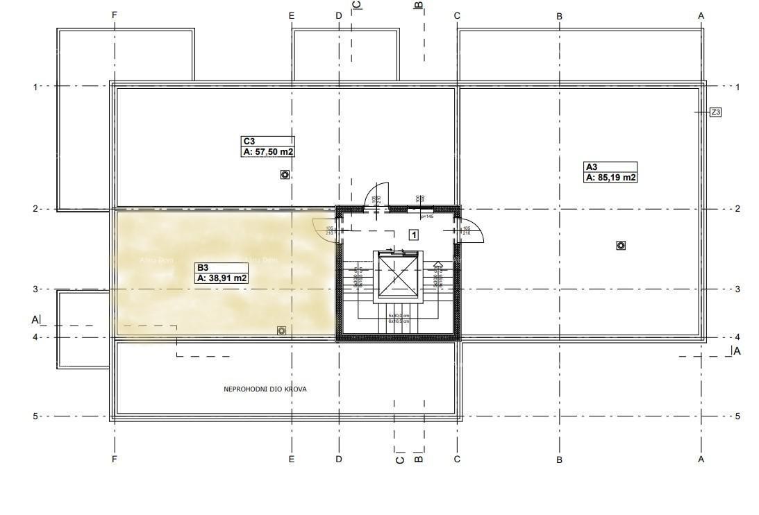
V Vabrigi, Istra, prodajamo enosoben stan oznake B3, velikosti 52,86 m², na 3. nadstropju. Stanu pripada tudi strešna terasa velikosti 39 m², s katere se razprostira čudovit pogled na morje.

Stan se nahaja v stavbi, ki obsega skupno 23 stanovanj, stavba bo opremljena z dvigalom.

Stan B3, velikosti 52,86 m², sestavljajo:
- predsoba, dnevna soba, kuhinja in jedilnica 35,06 m²
- pokrita terasa 5,16 m² * koef. 0,50 = 2,58 m²
- spalnica velikosti 11,19 m²
- kopalnica velikosti 4,03 m²
Stanu pripada tudi shrambe (1,82 m² * koef. 0,50 = 0,91 m²) v pritličju stavbe, strešna terasa (39 m² * koef. 0,25 = 9,70 m²) in parkirno mesto.

V vsaki prostoriji je predvidena klimatska naprava, v kopalnici pa talno ogrevanje.

Kupec je oproščen plačila davka na promet nepremičnin v višini 3%.

Na voljo smo za dodatne informacije in oglede.

+385 91 6115706
+385 98 420 885
azra@almadominvest.com

  • REI ID : 89184
  • Notranji ID agencije : 27436
  • Datum objave : 14.02.2026.
  • Datum posodobitve : 12.02.2026.
  • Število ogledov : 122
  • Prijavite oglas

Vsi podatki in slike na teh spletnih straneh so zgolj informativne narave, pred kakršnim koli zaključkom ali aktivnostjo na podlagi podatkov s teh strani je potrebno vse informacije preveriti pri oglaševalcu.

Niste našli, kar ste iskali? Oglejte si vse Stanovanja Poreč v naši ponudbi!

OBRNITE SE NA AGENTA