Čudovita vila s telovadnico, 4 spalnicami in bazenom, le 3 km od mesta Poreč - v fazi gradnje

Velikost stavbe

324 m2

Velikost parcele

1150 m2

Število spalnic

4

Število kopalnic

4

Poreč
1.460.000 €
4.506 €/m2
  • Oddaljenost od centra : 3000 m
  • Oddaljenost od morja : 3000 m
  • Število nadstropij : 3
  • Število spalnic : 4
  • Število sob : 6
  • Število kopalnic : 4
  • Število stranišč : 1
  • Parkirni prostor : Da
  • Garaža : Da
  • Klima : Da
  • Bazen : Da
  • Leto zadnje priredbe : 2024
  • Energetska učinkovitost : Ni določeno

OPIS NEPREMIČNINE

Samo 3 kilometre od čudovitih plaž in centra mesta Poreč je naprodaj čudovita in ekskluzivna vila z bazenom in telovadnico. Ta vila je trenutno v zaključni fazi in ponuja sodobno interpretacijo tradicionalne istrske arhitekture ter moderno notranjo opremo.

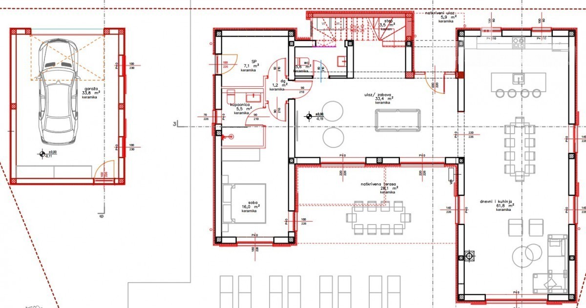
Vila je sestavljena iz pritličja, nadstropja in strešne terase, s skupno neto površino 324 m².

V pritličju je vhodna avla z družabnim prostorom, ki vključuje velik biljardni mizo. Iz prostorne avle lahko dostopate do nočnega dela na desni strani, ki vključuje spalnico z lastno kopalnico, shrambo, kotlovnico, pralnico in stranišče za goste. Na levi strani pritličja je velika kuhinja z dnevno sobo velikosti 62 m² in pokrita terasa.

Notranje stopnišče vodi v prvo nadstropje, kjer osrednji del zavzema telovadnica s savno. Na levi in desni strani so 3 spalnice, vsaka s svojo kopalnico, ter balkon in pokrita loža.

Zunanje stopnice vodijo na strešno teraso velikosti 37 m², ki bo imela masažno kad in družabni prostor.

Na prostornem dvorišču velikosti 1200 m² bodo garaža, bazen in zunanja kuhinja za uživanje s družino in prijatelji.

Hiša bo ogrevana s talnim gretjem preko toplotne črpalke, ki bo uporabljena tudi za ogrevanje sanitarne vode. Hlajenje bo zagotovljeno z enotami klimatskih naprav, z eno enoto v vsakem prostoru. Zunanje stavbno pohištvo bo aluminijasto. Na strehi bo nameščena prva faza sončnih kolektorjev. Parcela vključuje vrtino z vodnim virom za zalivanje vrta.

Ta hiša bo prodana popolnoma opremljena z visokokakovostnim, ročno izdelanim pohištvom. Cena vključuje DDV. Če hišo kupi pravna oseba (podjetje), je mogoče zahtevati vračilo DDV. Če hišo kupi fizična oseba, se na nakupno ceno ne plača davek na promet nepremičnin.

  • REI ID : 64660
  • Notranji ID agencije : 1334
  • Datum objave : 10.07.2024.
  • Datum posodobitve : 14.11.2024.
  • Število ogledov : 1680
  • Prijavite oglas

Vsi podatki in slike na teh spletnih straneh so zgolj informativne narave, pred kakršnim koli zaključkom ali aktivnostjo na podlagi podatkov s teh strani je potrebno vse informacije preveriti pri oglaševalcu.

Niste našli, kar ste iskali? Oglejte si vse Hiše Poreč v naši ponudbi!

OBRNITE SE NA AGENTA