Terreno edificabile con permesso di costruzione in prima fila al mare vicino a Umag - Umago

Superficie di particela

2390 m2

Distanza dal mare

30 m

Umago, Lovrečica
890.000 €
372 €/m2

DESCRIZIONE DELL'IMMOBILE

Terreno edificabile con permesso di costruire in prima fila al mare vicino a Umag - Umago

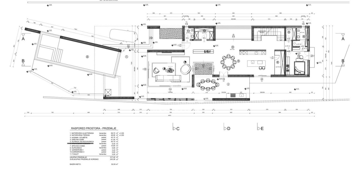
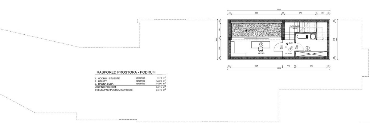
Vendesi terreno edificabile con permesso di costruire in prima fila sul mare vicino a Umag - Umago. La superficie del terreno è di 2390 m2 ed è prevista la costruzione di una villa con piscina su tre piani: seminterrato, piano terra e primo piano. La superficie netta totale della villa è di 475 m2, mentre la superficie della piscina è di 52 m2.

www.leones-realestate.hr

  • REI ID : 75959
  • ID interno dell'agenzia : 665
  • Data di pubblicazione : 16.05.2025.
  • Data di aggiornamento : 05.02.2026.
  • Numero di visualizzazioni : 672
  • Segnala un annuncio

Tutti i dati e le immagini su questi siti Web sono presentati solo a scopo informativo, prima di qualsiasi conclusione o attività basata sui dati di queste pagine, tutte le informazioni devono essere verificate con l'inserzionista.

CONTATTA UN AGENTE