POSIZIONE ESCLUSIVA!!! Appartamento al piano rialzato con ampio terrazzo, a 130 m dal mare

Superficie di immobile

121 m2

Numero di camere da letto

2

Numero di bagni

2

Piano

Pianterreno

Umago, Crveni Vrh
495.000 €
4.091 €/m2
  • Distanza dal centro : 3500 m
  • Distanza dal mare : 130 m
  • Numero di camere da letto : 2
  • Numero di camere : 3
  • Numero di bagni : 2
  • Vista sul mare : Si
  • Anno di costruzione : 2005
  • Efficienza energetica : Non specificato

DESCRIZIONE DELL'IMMOBILE

EXCLUSIVE AND RARE LOCATION IN ISTRIA!!!

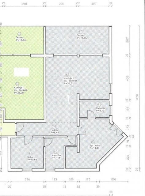
This beautiful apartment is located only 130 m from the sea, in a well-maintained part of the settlement. The building was built in 2005 and is regularly maintained. It is located on the high ground floor of a building with an elevator. It consists of a hallway, a living room-kitchen with an area of 35.51 m2, a terrace with an area of 24.47 m2, two bathrooms ans two bedrooms. The apartment also has a storage room in the basement of the building with an area of 10.59 m2. The total area of the apartment is 121.52 m2. The apartment is sold fully furnished, and heating and cooling are regulated by air conditioners.

It is also possible to buy a parking space for an additional 14,000 euros or a garage space for an additional 20,000 euros. Apartment owners are offered the possibility of using the swimming pool, fitness center, and with certain discounts, the indoor pool, golf and similar amenities.


Provizija agencije za kupca iznosi 3% + PDV i plaća se u slučaju kupovine nekretnine kod zaključenja kupoprodajnog Ugovora.

Euro Immobilien d.o.o.
Mob: 00385 (0)99 444 0500
Tel: +385 51 220 024
E-mail: info@euro-immobilien.hr
www.euro-immobilien.hr

  • REI ID : 61328
  • ID interno dell'agenzia : XML-4069-460117
  • Data di pubblicazione : 14.03.2024.
  • Data di aggiornamento : 09.07.2025.
  • Numero di visualizzazioni : 855
  • Segnala un annuncio

Tutti i dati e le immagini su questi siti Web sono presentati solo a scopo informativo, prima di qualsiasi conclusione o attività basata sui dati di queste pagine, tutte le informazioni devono essere verificate con l'inserzionista.

Non hai trovato quello che stavi cercando? Vedi tutte le Appartamenti Umag nella nostra offerta!

CONTATTA UN AGENTE