Lussuoso appartamento con due camere da letto, al piano terra di un edificio moderno - nella fase di costruzione

Superficie di immobile

66 m2

Numero di camere da letto

2

Numero di bagni

1

Piano

Pianterreno

Parenzo
327.500 €
4.962 €/m2
  • Distanza dal centro : 1000 m
  • Distanza dal mare : 3500 m
  • Numero di piani : 3
  • Numero di camere da letto : 2
  • Numero di camere : 3
  • Numero di bagni : 1
  • Parcheggio : Si
  • Box auto : Si
  • Ascensore : Si
  • Aria condizionata : Si
  • Piscina : Si
  • Anno di costruzione : 2025
  • Efficienza energetica : Non specificato

DESCRIZIONE DELL'IMMOBILE

Presto inizierà la costruzione di un'affascinante complesso residenziale situato all'interno di una pittoresca cittadina turistica. Questo complesso progettato con la cura offrirà una gamma completa di servizi essenziali, garantendo uno stile di vita veramente confortevole.
Il lussuoso sviluppo dispone di appartamenti moderni con le planimetrie aperte, distribuiti su due palazzine dal design elegante.
In totale, ci saranno 26 appartamenti, ed ogni palazzina ospiterà 13 appartamenti. Questi squisiti spazi abitativi variano in dimensioni, da l'accogliente 53 mq ad un'ampio 226 mq.

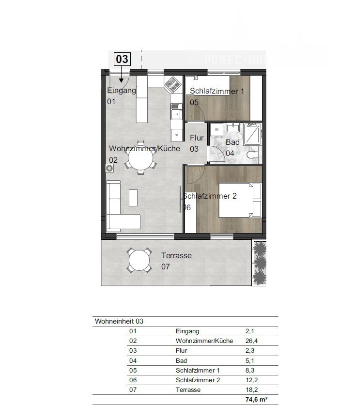
L'appartamento "03" si trova al piano terra ed ha la superficie netta di 65,5 mq. Composto dall'ingresso, il soggiorno con la cucina e la sala pranzo, il bagno, due ampie camere da letto e il terrazzo coperto, questo appartamento offre la perfetta combinazione di comfort e la funzionalità.

Le unità di condizionamento dell'aria saranno installate nelle camere da letto è nel soggiorno, fornendo il riscaldamento e il raffreddamento ottimali. Inoltre, l'appartamento sarà dotato di riscaldamento elettrico a pavimento, migliorando ulteriormente il comfort.
Il prezzo include due posti auto nel garage sotterraneo, garantendo la vostra comodità e tranquillità.

I residenti di questo esclusivo complesso avranno il privilegio di godere non di una ma di due piscine. La prima, un'oasi di 30 m² progettata pensando ai bambini, promette divertimento e relax senza fine. Il secondo, di circa 70 m², offre agli adulti un rifugio sereno per rilassarsi e prendere il sole.

I dintorni paesaggistici del complesso sono destinati ad assomigliare ad un paradiso botanico, fornendo l'ambiente tranquillo ed esteticamente gradevole per tutti i residenti. La manutenzione di questi incantevoli terreni sarà affidata alle aziende professionali, che ne assicureranno la manutenzione impeccabile.

L'appartamento identico al primo piano (segnato come appartamento "7" in planimetria) si vende al prezzo di 301.000,00 €.

  • REI ID : 56226
  • ID interno dell'agenzia : 1202
  • Data di pubblicazione : 18.08.2023.
  • Data di aggiornamento : 16.05.2024.
  • Numero di visualizzazioni : 1528
  • Segnala un annuncio

Tutti i dati e le immagini su questi siti Web sono presentati solo a scopo informativo, prima di qualsiasi conclusione o attività basata sui dati di queste pagine, tutte le informazioni devono essere verificate con l'inserzionista.

Non hai trovato quello che stavi cercando? Vedi tutte le Appartamenti Poreč nella nostra offerta!

CONTATTA UN AGENTE