Juršići, terreno di 20.000 m2 con progetto, costruzione iniziata

Superficie di particela

20130 m2

Sanvincenti, Juršići
310.000 €
15 €/m2

DESCRIZIONE DELL'IMMOBILE

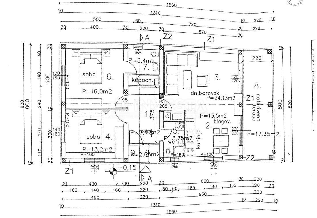
In vendita terreno a Juršići, comune di Svetvinčenat, con una superficie totale di 20.130 m².
È stato realizzato un progetto architettonico per un edificio residenziale di 95,11 m² di superficie netta e per un edificio agricolo di 626,62 m².
È iniziata la costruzione dell'edificio residenziale che consiste in un piano terra composto da un ingresso, due camere da letto, due bagni, una cucina con zona pranzo, un soggiorno e una spaziosa terrazza coperta.
Tutti i servizi sono stati pagati.
Per ulteriori informazioni o per una visita, non esitate a contattarci.



Đankarlo Čekić
Mob: +385 99 237 6130
Tel: +385 52 33 00 33
E-mail: dan@investa.hr
www.investa.hr

  • REI ID : 78976
  • ID interno dell'agenzia : XML-3061-102137
  • Data di pubblicazione : 10.07.2025.
  • Data di aggiornamento : 10.07.2025.
  • Numero di visualizzazioni : 350
  • Segnala un annuncio

Tutti i dati e le immagini su questi siti Web sono presentati solo a scopo informativo, prima di qualsiasi conclusione o attività basata sui dati di queste pagine, tutte le informazioni devono essere verificate con l'inserzionista.

CONTATTA UN AGENTE