Dintorni di Barbana, terreno edificabile con progetto

Superficie di particela

784 m2

Barbana
110.000 €
140 €/m2

DESCRIZIONE DELL'IMMOBILE

Nella zona di Barban, è in vendita un terreno edificabile di 784 m² con un progetto per la costruzione di una casa familiare P+1 con piscina.
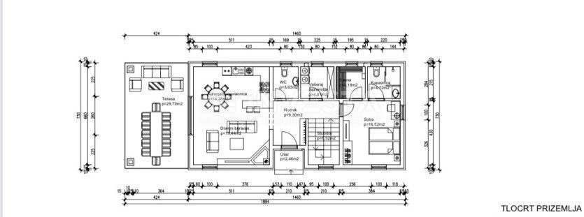
Il piano terra della casa, secondo la documentazione di progetto, dovrebbe consistere in un corridoio, un bagno, una lavanderia, una camera da letto con bagno privato e un soggiorno open space con cucina e sala da pranzo, con accesso a una terrazza coperta. Adiacente alla terrazza, ci sarebbe una piscina con area prendisole e parcheggio.
Il primo piano della casa dovrebbe consistere in un corridoio, tre camere da letto con bagni privati e un loggiato.

Per ulteriori informazioni, non esitate a contattarci.



Roberta Marie Rendulić
Mob: +385 99 759 7766
Tel: +385 52 33 00 33
E-mail: roberta@investa.hr
www.investa.hr

  • REI ID : 78762
  • ID interno dell'agenzia : XML-3061-102528
  • Data di pubblicazione : 07.07.2025.
  • Data di aggiornamento : 20.03.2026.
  • Numero di visualizzazioni : 506
  • Segnala un annuncio

Tutti i dati e le immagini su questi siti Web sono presentati solo a scopo informativo, prima di qualsiasi conclusione o attività basata sui dati di queste pagine, tutte le informazioni devono essere verificate con l'inserzionista.

CONTATTA UN AGENTE