Bellissima villa di design a 2 km dal mare - nella fase di costruzione

Superficie di immobile

132 m2

Superficie di particela

600 m2

Numero di camere da letto

3

Numero di bagni

2

Parenzo
790.000 €
5.985 €/m2
  • Distanza dal centro : 500 m
  • Distanza dal mare : 2500 m
  • Numero di camere da letto : 3
  • Numero di camere : 4
  • Numero di bagni : 2
  • Numero della toilette : 1
  • Parcheggio : Si
  • Aria condizionata : Si
  • Piscina : Si
  • Anno di costruzione : 2024
  • Efficienza energetica : Non specificato

DESCRIZIONE DELL'IMMOBILE

L'Istria, Tar

In una posizione molto attraente è iniziata la costruzione di questa bellissima villa di design.
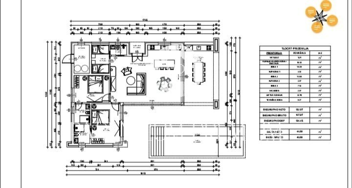
La casa di 132 m2 si trova su un terreno di 600 m2.
Sarà composto da un ingresso, un ampio soggiorno con cucina e sala da pranzo, un wc, 3 camere da letto e due bagni.
Il cortile della casa sarà composto da una cucina estiva, una zona prendisole e una piscina di 44 m2.
In tutta la casa sarà installato il riscaldamento a pavimento tramite pompa di calore, e condizionatori in tutte le stanze.
La casa viene venduta chiavi in ​​mano e sarà completamente attrezzata e arredata con mobili di design e tecnologia di altissima qualità.
Per la sua posizione in una cittadina dotata di tutti i comfort per la vita, questa proprietà è ottima per questioni abitative, ma anche un buon investimento per fini turistici.

  • REI ID : 59650
  • ID interno dell'agenzia : 1653
  • Data di pubblicazione : 09.01.2024.
  • Data di aggiornamento : 08.01.2025.
  • Numero di visualizzazioni : 1289
  • Segnala un annuncio

Tutti i dati e le immagini su questi siti Web sono presentati solo a scopo informativo, prima di qualsiasi conclusione o attività basata sui dati di queste pagine, tutte le informazioni devono essere verificate con l'inserzionista.

Non hai trovato quello che stavi cercando? Vedi tutte le Case Poreč nella nostra offerta!

CONTATTA UN AGENTE