Višnjan area: building land with constructed foundations, PANORAMIC OPEN VIEW!

Plot size

552 m2

Distance from see

17000 m

Višnjan
137.500 €
249 €/m2

REAL ESTATE DESCRIPTION

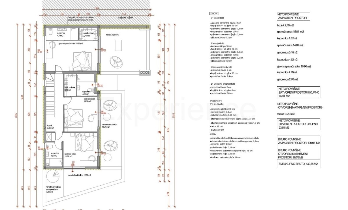
In the vicinity of Višnjan, in a very quiet environment, there is a building plot for sale, surface of 552 m². The land is located in an typical Istrian village with only a few houses, on the edge of the construction area. The terrain is flat, elevated, and offers an open panoramic view of the surrounding hills.   A building permit was obtained and utilities were paid for the construction of a semi-detached family house with a swimming pool, with a total net area of 223 m². The communal contribution fee of 7.000 € has been paid. Construction has started, the foundation has been built.   Electricity and water connections are located next to the plot.   The stated price includes VAT in the amount of 25%. 

  • REI ID : 83505
  • Internal agency ID : 2458
  • Insert date : 11.11.2025.
  • Aktualisierungsdatum : 12.03.2026.
  • Number of views : 293
  • Report an ad

All data and images on these websites are presented for informational purposes only, before any conclusion or activity based on data from these pages, all information should be checked with the advertiser.

CONTACT THE AGENT