Wohnung im 1. Stock mit zwei Schlafzimmern in einem neuen Gebäude 2 km vom Meer entfernt!!

Wohnfläche

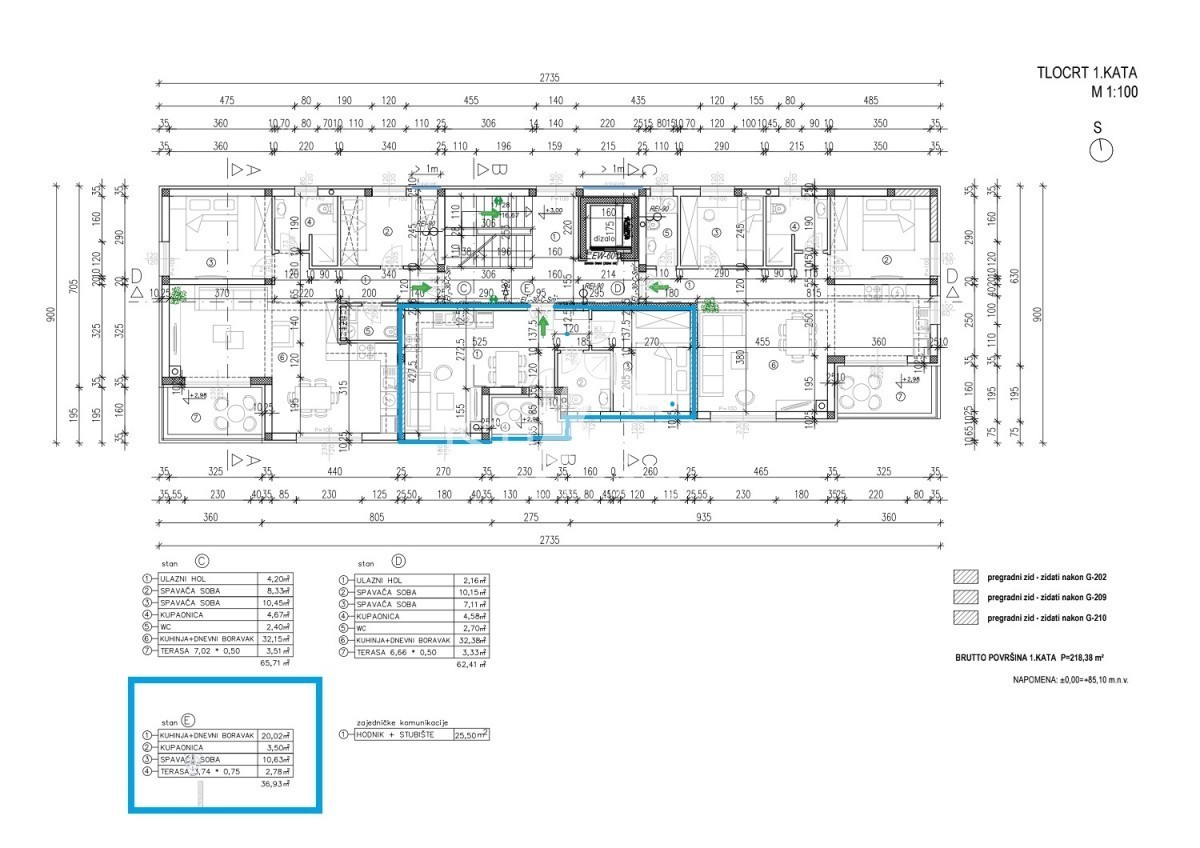
65.71 m2

Anzahl der Schlafzimmer

2

Anzahl der Badezimmer

1

Etage

1

Tar-Vabriga, Tar
210.272 €
3.200 €/m2
  • Entfernung zum Zentrum : 500 m
  • Entfernung zum Meer : 2000 m
  • Anzahl der Schlafzimmer : 2
  • Anzahl der Zimmer : 3
  • Anzahl der Badezimmer : 1
  • Anzahl der WC : 1
  • Parkplatz : Ja
  • Baujahr : 2024
  • Energieeffizien : Nicht bekannt

OBJEKTBESCHREIBUNG

S171

Umgebung von Poreč, ca. 2 km vom Meer entfernt, neue Wohnungen im Bau
An einem Ort mit allen notwendigen Annehmlichkeiten, Supermärkten, Apotheke, Schule, Kindergarten und allem anderen.
Das Gebäude verfügt über 11 Wohnungen
2 im Erdgeschoss und je 3 Wohnungen im 1. und 2. Obergeschoss. und 3. Etage. In der gesamten Wohnung ist eine Fußbodenheizung vorgesehen, ebenso in der 1. Phase für Klimaanlagen, PVC-Tischlerei und Sanitärkeramik, / Dusche in den Badezimmern.
Zu jeder Wohnung gehören 2 Parkplätze!
Voraussichtlicher Fertigstellungstermin ist der 1. Juli 2025.

Wohnung C, Fläche 65,71 m2, besteht aus: Flur, 2 Schlafzimmern, Badezimmer, Gäste-WC, Küche und Esszimmer mit Wohnzimmer und Ausgang zur Terrasse.

  • REI ID : 60938
  • Interne Agentur-ID : 1809
  • Einfügen Datum : 02.03.2024.
  • Aktualisierungsdatum : 08.05.2024.
  • Anzahl der Aufrufe : 875
  • Anzeige melden

Alle Daten und Bilder auf diesen Websites werden nur zu Informationszwecken präsentiert, vor jeder Schlussfolgerung oder Aktivität auf der Grundlage von Daten von diesen Seiten sollten alle Informationen mit dem Inserenten überprüft werden.

KONTAKTIEREN SIE DEN AGENTEN