Neues Wohnprojekt im Bau! Pula, Valdebek!

Wohnfläche

93.08 m2

Anzahl der Schlafzimmer

3

Anzahl der Badezimmer

1

Etage

1

Pula
279.200 €
3.000 €/m2
  • Entfernung zum Zentrum : 3000 m
  • Entfernung zum Meer : 2400 m
  • Anzahl der Etagen : 3
  • Anzahl der Schlafzimmer : 3
  • Anzahl der Zimmer : 3
  • Anzahl der Badezimmer : 1
  • Parkplatz : Ja
  • Klimaanlage : Ja
  • Baujahr : 2025
  • Energieeffizien : Nicht bekannt

OBJEKTBESCHREIBUNG

Die neue Wohnanlage besteht aus 2 zweigeschossigen Wohnhäusern mit jeweils nur 4 Wohnungen.

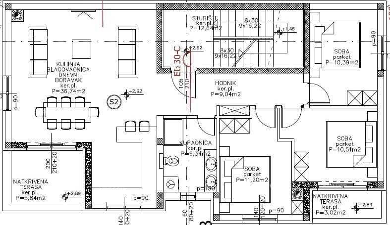
Die Wohnung S2 befindet sich im 1. Stock des Gebäudes B und besteht aus einem Flur, einem Badezimmer, einem geräumigen Wohnzimmer mit Küche und Esszimmer, 3 Schlafzimmern und einer Terrasse.
Zur Wohnung gehört ein Parkplatz, der zusätzlich bezahlt wird.
Optional besteht die Möglichkeit, einen Abstellraum und einen zusätzlichen Garagenstellplatz zu erwerben. Der Preis für einen Parkplatz beträgt 9.000 Euro, für einen Garagenplatz 15.000 Euro.

Die geplante Fertigstellung der Bauarbeiten ist Ende Sommer 2025.

Für weitere Informationen stehen wir Ihnen gerne zur Verfügung:

Azra
+385 91 611 5706
+385 98 420 885
azra@almadominvest.com

  • REI ID : 83155
  • Interne Agentur-ID : 25027
  • Einfügen Datum : 01.11.2025.
  • Aktualisierungsdatum : 30.10.2025.
  • Anzahl der Aufrufe : 363
  • Anzeige melden

Alle Daten und Bilder auf diesen Websites werden nur zu Informationszwecken präsentiert, vor jeder Schlussfolgerung oder Aktivität auf der Grundlage von Daten von diesen Seiten sollten alle Informationen mit dem Inserenten überprüft werden.

Haben Sie nicht gefunden, wonach Sie gesucht haben? Sehen Sie alle Wohnungen Pula in unserem Angebot!

KONTAKTIEREN SIE DEN AGENTEN