Moderno stanovanje v drugem nadstropju s pogledom na morje v Lovrečici, 200 metrov od plaže

Wohnfläche

71 m2

Anzahl der Schlafzimmer

2

Anzahl der Badezimmer

1

Etage

2

Umag, Lovrečica
308.000 €
4.338 €/m2
  • Entfernung zum Zentrum : 200 m
  • Entfernung zum Meer : 200 m
  • Anzahl der Etagen : 2
  • Anzahl der Schlafzimmer : 2
  • Anzahl der Zimmer : 3
  • Anzahl der Badezimmer : 1
  • Meerblick : Ja
  • Parkplatz : Ja
  • Klimaanlage : Ja
  • Baujahr : 2025
  • Energieeffizien : A

OBJEKTBESCHREIBUNG

Modernes Apartment im zweiten Stock mit Meerblick in Lovrečica, 200 Meter vom Strand entfernt

Zum Verkauf steht eine moderne Wohnung im zweiten Stock mit Meerblick in Lovrečica, nur 200 Meter vom Strand entfernt.

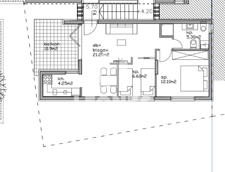
Dieses hochwertige Apartment besteht aus einem offenen Wohnzimmer mit Küche und Esszimmer, zwei Schlafzimmern und einem Badezimmer.

Vom Wohnzimmer aus gelangen Sie auf die überdachte Terrasse mit Blick auf das Meer.

Die Wohnung verfügt über einen Abstellraum und einen überdachten Parkplatz.

Die Beheizung erfolgt über eine Klimaanlage und eine Fußbodenheizung im Badezimmer.

Beim Bau wurden hochwertige Materialien, Steinwolleisolierung, einbruchhemmende Türen, Aluminiumfenster mit elektrischen Jalousien und Moskitonetze verwendet.

Hochwertige Materialien und die Nähe zum Meer werden Sie sicherlich begeistern!

www.leones-realestate.hr

  • REI ID : 74466
  • Interne Agentur-ID : 618
  • Einfügen Datum : 25.03.2025.
  • Aktualisierungsdatum : 24.03.2025.
  • Anzahl der Aufrufe : 3128
  • Anzeige melden

Alle Daten und Bilder auf diesen Websites werden nur zu Informationszwecken präsentiert, vor jeder Schlussfolgerung oder Aktivität auf der Grundlage von Daten von diesen Seiten sollten alle Informationen mit dem Inserenten überprüft werden.

Haben Sie nicht gefunden, wonach Sie gesucht haben? Sehen Sie alle Wohnungen Umag in unserem Angebot!

KONTAKTIEREN SIE DEN AGENTEN