Moderne Haus in der Nähe von Novigrad - 300m vom Meer entfernt

Wohnfläche

128 m2

Grundstücksfläche

220 m2

Anzahl der Schlafzimmer

3

Anzahl der Badezimmer

3

Novigrad
590.000 €
4.609 €/m2
  • Entfernung zum Zentrum : 6000 m
  • Entfernung zum Meer : 300 m
  • Anzahl der Etagen : 2
  • Anzahl der Schlafzimmer : 3
  • Anzahl der Zimmer : 4
  • Anzahl der Badezimmer : 3
  • Meerblick : Ja
  • Parkplatz : Ja
  • Klimaanlage : Ja
  • Baujahr : 2025
  • Energieeffizien : Nicht bekannt

OBJEKTBESCHREIBUNG

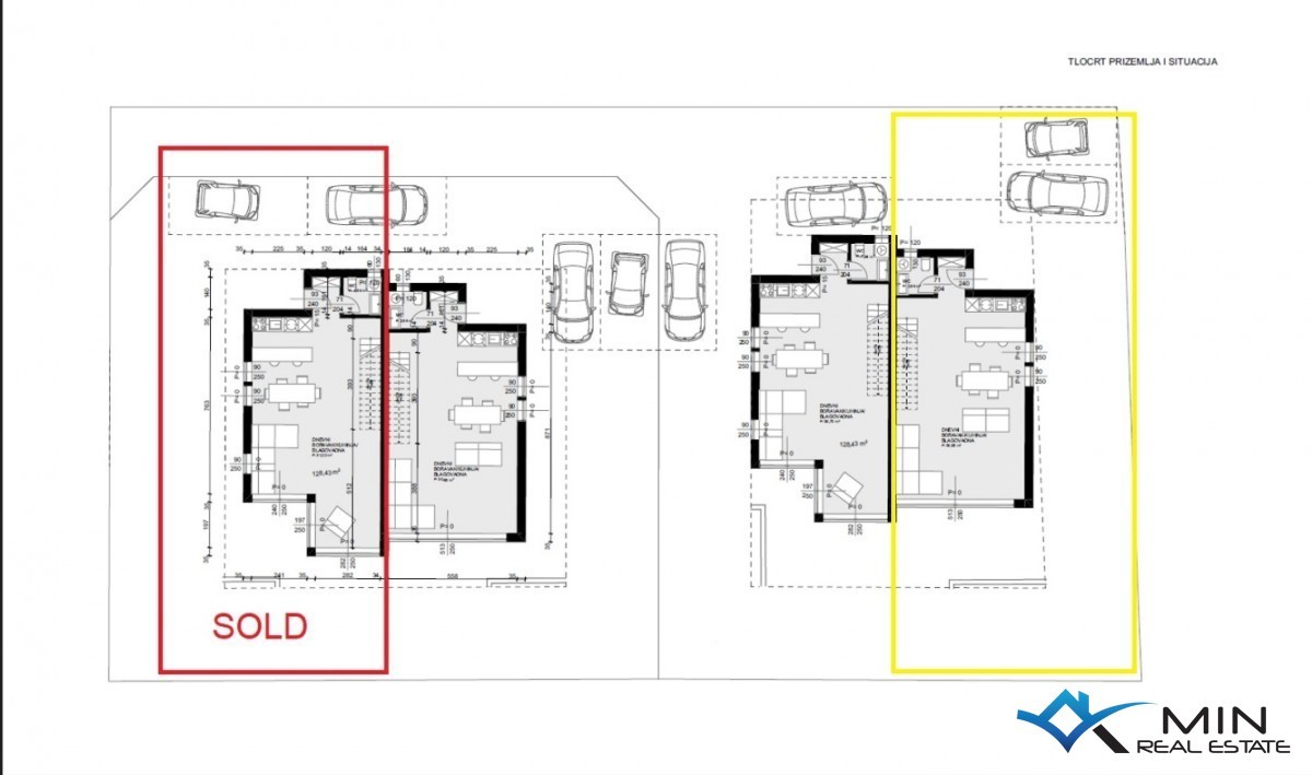
Gelegenheit zum Kauf eines modernen Hauses, das nur 300 Meter vom Meer entfernt liegt, in unmittelbarer Nähe von Novigrad. Dieses elegante Haus bietet ein anspruchsvolles Design und Komfort, perfekt für eine Familie oder als Ferienhaus. Das Erdgeschoss besteht aus einem Eingangsbereich, einem WC, einem offenen Bereich (ein großer offener Raum, der die Küche, das Esszimmer und das Wohnzimmer umfasst), einer überdachten Terrasse (vom Wohnzimmer aus gelangt man zu einer überdachten Terrasse, die den perfekten Raum zum Entspannen bietet) und einem Garten mit vorbereiteten Installationen für eine Sommerküche. Im ersten Stock befinden sich drei Schlafzimmer (das Hauptschlafzimmer hat ein eigenes Badezimmer und eine Terrasse, während die anderen beiden Schlafzimmer sich ein Badezimmer teilen). Im obersten Stockwerk befindet sich eine Terrasse mit einem fantastischen Meerblick. Auf der Terrasse sind Installationen für Strom, Wasser und Abfluss vorbereitet. Das Haus verfügt über zwei Parkplätze und einen Garten von etwa 220 m². Entfernungen: Der erste ausgestattete Strand ist etwa 500 Meter entfernt, und ein Geschäft, eine Bar oder ein Restaurant sind nur 200-250 Meter entfernt.
Das Haus befindet sich in einer ruhigen Gegend, umgeben von modernen Villen, die die perfekte Balance zwischen Privatsphäre und einfachem Zugang zu lokalen Annehmlichkeiten bieten. Diese Immobilie stellt eine außergewöhnliche Gelegenheit dar für diejenigen, die luxuriöses Wohnen in der Nähe des Meeres mit allen Vorteilen moderner Architektur und Komfort suchen. Verpassen Sie nicht diese Gelegenheit - kontaktieren Sie uns für weitere Informationen.

  • REI ID : 71616
  • Interne Agentur-ID : 1450
  • Einfügen Datum : 18.01.2025.
  • Aktualisierungsdatum : 17.01.2025.
  • Anzahl der Aufrufe : 847
  • Anzeige melden

Alle Daten und Bilder auf diesen Websites werden nur zu Informationszwecken präsentiert, vor jeder Schlussfolgerung oder Aktivität auf der Grundlage von Daten von diesen Seiten sollten alle Informationen mit dem Inserenten überprüft werden.

Haben Sie nicht gefunden, wonach Sie gesucht haben? Sehen Sie alle Häuser Novigrad in unserem Angebot!

KONTAKTIEREN SIE DEN AGENTEN