Istrien, Poreč - neue Wohnung von 76 m2 mit Garten, zwei Parkplätze

Wohnfläche

76 m2

Anzahl der Schlafzimmer

2

Anzahl der Badezimmer

2

Etage

Erdgeschoss

Poreč
266.945 €
3.512 €/m2
  • Gartenfläche : 70 m2
  • Entfernung zum Zentrum : 9000 m
  • Entfernung zum Meer : 3000 m
  • Anzahl der Etagen : 3
  • Anzahl der Schlafzimmer : 2
  • Anzahl der Zimmer : 3
  • Anzahl der Badezimmer : 2
  • Parkplatz : Ja
  • Aufzug : Ja
  • Baujahr : 2025
  • Energieeffizien : A

OBJEKTBESCHREIBUNG

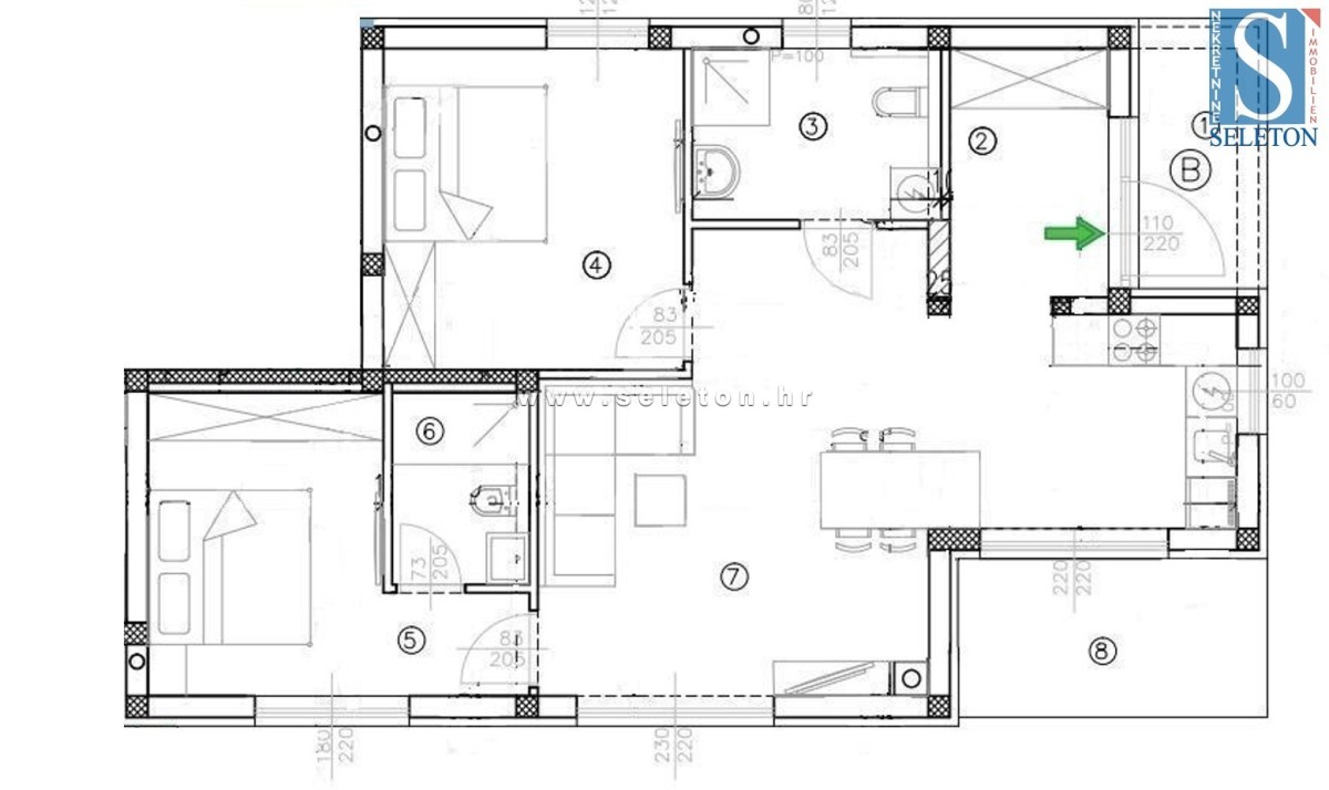
Zum Verkauf steht eine nueu Wohnung in der Nähe von Poreč mit einer Fläche von 76,27 m², bestehend aus Wohnzimmer, Esszimmer, Küche, Flur, überdachter Terrasse, 2 Schlafzimmern und 2 Bädern.  Die Wohnung befindet sich im Erdgeschoss des Gebäudes mit Aufzug, verfügt über einen separaten Eingang, 2 Parkplätze, Fußbodenheizung in der gesamten Wohnung, Fenster mit drei IZO-Gläsern, Moskitonetze an den Fenstern, vorbereitung für Klimaanlage und einem privaten Garten von ca. 70 m².  Die Wohnung liegt ca. 3 km vom Meer und 9 km vom Zentrum von Poreč entfernt, im Ort gibt es Restaurants, Cafés, eine Apotheke und Supermarkt.


ANMERKUNG:
Da die Immobilie der Mehrwertsteuer unterliegt, zahlt der Käufer keine Grunderwerbsteuer in Höhe von 3 % des Kaufpreises.

  • REI ID : 60772
  • Interne Agentur-ID : 38
  • Einfügen Datum : 22.02.2024.
  • Aktualisierungsdatum : 18.02.2026.
  • Anzahl der Aufrufe : 1429
  • Anzeige melden

Alle Daten und Bilder auf diesen Websites werden nur zu Informationszwecken präsentiert, vor jeder Schlussfolgerung oder Aktivität auf der Grundlage von Daten von diesen Seiten sollten alle Informationen mit dem Inserenten überprüft werden.

Haben Sie nicht gefunden, wonach Sie gesucht haben? Sehen Sie alle Wohnungen Poreč in unserem Angebot!

KONTAKTIEREN SIE DEN AGENTEN