Penthouse with 4 Beds & Large Terrace – Poreč, 600 m from Sea

Building size

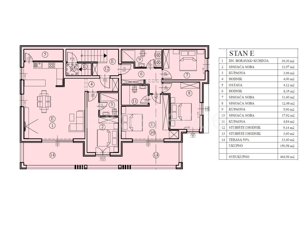
150.58 m2

Number of bedrooms

4

Number of bathrooms

3

Floor

2

Poreč
599.000 €
3.978 €/m2
  • Distance from center : 1000 m
  • Distance from see : 600 m
  • Number of floors : 2
  • Number of bedrooms : 4
  • Number of rooms : 5
  • Number of bathrooms : 3
  • Parking : Yes
  • Year of construction : 2025
  • Energy efficiency : Not specified

REAL ESTATE DESCRIPTION

In an ATTRACTIVE LOCATION, only 600 m from the beach and 1.000 m from the city center, there is an penthouse under construction for sale, total area 150.58 m². Located on the second and last floor of an intimate residential building with only five residential units, the penthouse offers intimacy and comfort of life with a modern design and functional layout.   The apartment consists of:• entrance hall,• bright and open living room connected to the kitchen and dining room,• large glass walls leading to the spacious covered terrace (26,80 m²),• four comfortable bedrooms,• three modern bathrooms and storage room.   The apartment includes two parking spaces in front of the building.   Additional benefits include underfloor heating in all rooms, and inverter air conditioners that provide a comfortable temperature throughout the year.   Note: the buyer does not pay real estate sales tax (3% of the purchase price).   This offer is a rare opportunity, a modern apartment in a great location in

  • REI ID : 78205
  • Internal agency ID : 2247
  • Insert date : 01.07.2025.
  • Aktualisierungsdatum : 12.03.2026.
  • Number of views : 201
  • Report an ad

All data and images on these websites are presented for informational purposes only, before any conclusion or activity based on data from these pages, all information should be checked with the advertiser.

Didn't find what you were looking for? See all Apartments Poreč in our offer!

CONTACT THE AGENT